#51028
Буржуазная квартира с видом и ремонтом в Ментоне
Вас заинтересовала эта квартира?
Агентство зарубежной недвижимости "EstateService"
Франция, Лазурный Берег, Ментон, Madone
- Типапартаменты
- Количество спален3
- Общий метраж85 кв. м.
Цена:
790'000 евро
Описание:
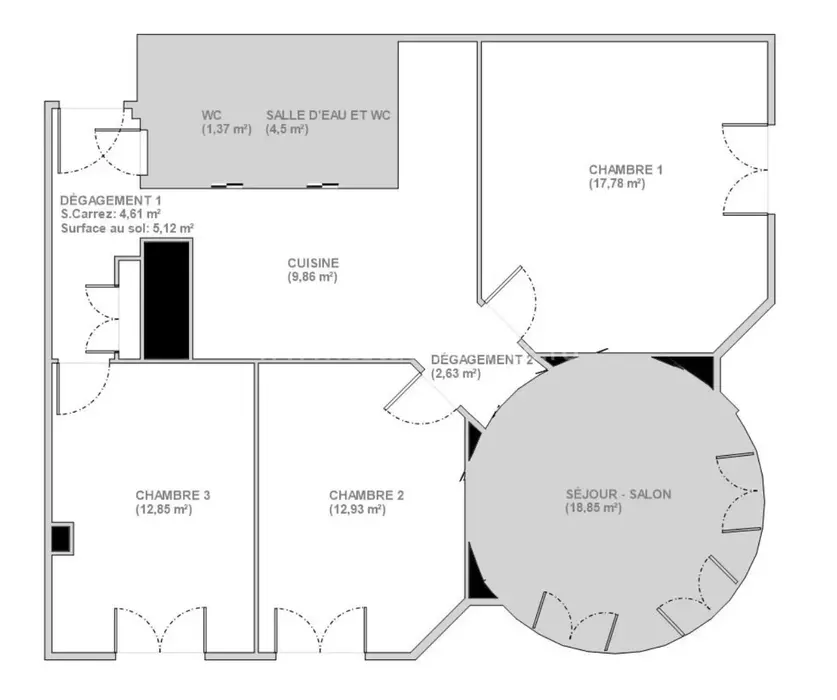
Светлые апартаменты на 3-м этаже закрытой резиденции Belle Époque с лифтом, парком и консьержем в 350-ти метрах от моря. Жилая площадь 63 m² - прихожая с гардеробной, открытая кухня 9.8 m² с прачечной, круглая гостиная 18.8 m² с тремя балкончиками, три спальни 12.8, 12.9 и 17.7 m² с балконами, душевая комната с туалетом и отдельный санузел. Продается с частным подвалом. Роскошная отделка, высокие потолки, кладовая, охраняемая общая парковка для владельцев и посетителей, можно купить закрытый гараж 60.000 €. Коммунальные платежи 412 €, годовой налог 1.683 €.
Дополнительно:
Есть терраса
Вид на море
До пляжа: пешком
Закрытая территория \ Охрана
Вся инфраструктура рядом
Места на парковке
Заявка
на квартиру (подробности,
расположение, визит)
Похожая недвижимость
