Квартира в Хавее, район Arenal
Агентство зарубежной недвижимости "EstateService"
- Типапартаменты
- Количество спален1 - 2
- Общий метраж189 кв. м.
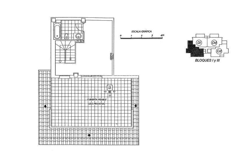
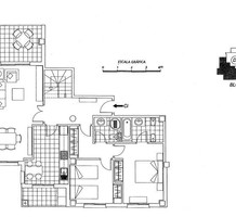
Красивый дуплекс в новом жилом комплексе в городе Хавея. Площадь апартаментов составляет 189 м2. На первом этаже находится гостиная, большая кухня с подсобным помещением, 2 спальни со встроенными шкафами, 2 ванные комнаты и крытая терраса площадью 13 м2. На втором этаже – мансардное помещение, ванная комната и большая терраса площадью 35 м2. Установлена система центрального отопления и кондиционирования. Предусмотрено место для парковки. На территории комплекса для удобства и отдыха владельцев имеется зеленая зона с бассейном. Комплекс расположен в районе с развитой инфраструктурой, расстояние до Playa del Arenal – 300 метров. Напротив находится теннисный клуб.
