Вилла в закрытом комплексе, Зеленый Пояс
Агентство зарубежной недвижимости "EstateService"
Москва: +7 (495) 266-65-87
Санкт-Петербург: +7 (812) 244-68-54
- Типвилла
- Количество спален7
- Общий метраж650 кв. м.
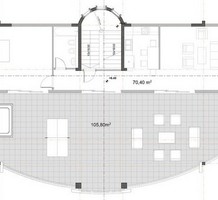
Вилла на заключительных этапах работ в престижном районе Зеленый Пояс. Площадь дома 650 m², прилегающий участок земли 600 m². Возможность использовать под мини-отель на 4-7 номеров. Круглогодичный комплекс вблизи хвойного леса и 300 метрах от пляжа, дорога до которого по тропинке занимает всего несколько минут. Рядом есть школа, детский сад, магазины, кафе и поликлиника. На территории планируется закрытый бассейн и общая зона отдыха с шезлонгами, мини-кухней и мангалом, оборудована детская площадка и поле для активных видов спорта. Территория огорожена и охраняется, обслуживание комплекса через управляющую компанию. Покупатель не оплачивает налог 3% на приобретение.
