Новые апартаменты в центре Будвы
Агентство зарубежной недвижимости "EstateService"
Москва: +7 (495) 266-65-87
Санкт-Петербург: +7 (812) 244-68-54
- Типапартаменты
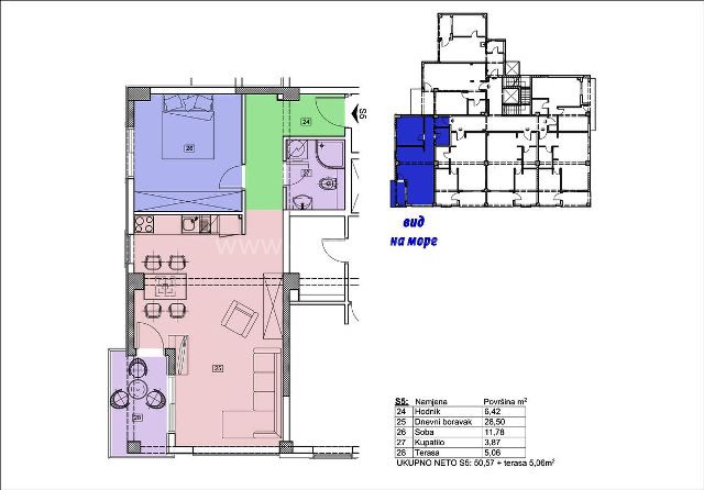
- Общий метраж43 кв. м.
Новые апартаменты с удобным расположением в Будве, рядом со всей необходимой инфраструктурой и морем. Современное восьмиэтажное здание со своим гаражом, лифтом, системами видеонаблюдения и "Умный дом". В продаже осталось две квартиры площадью 43 м2 на 3 и 6 этажах, а также коммерческие площади 59 и 78 м2 на цокольном. Все квартиры имеют вид на море, расстояние до которого составляет порядка 200 метров. Высокое качество отделки, удачное расположение, хороший арендный потенциал.
