#33795
Современные апартаменты в центре Grinzing
Вас заинтересовала эта квартира?
Агентство зарубежной недвижимости "EstateService"
Австрия, Вена, 19-ый район (Дёблинг)
- Типапартаменты
- Количество спален4 - 5
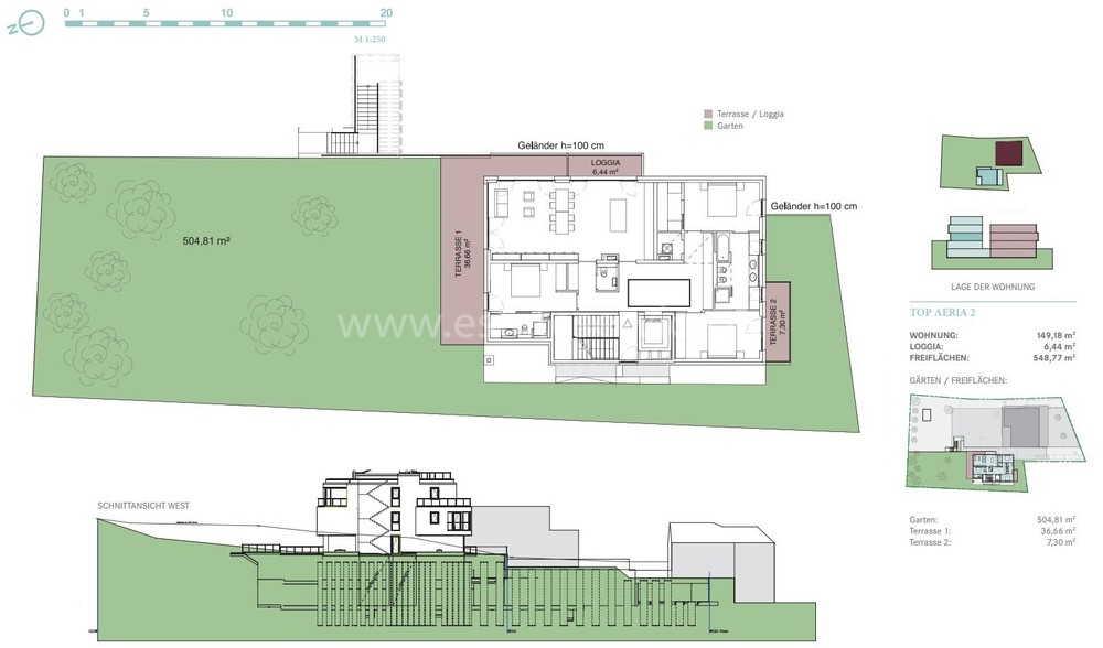
- Общий метраж119 - 252 кв. м.
Цена:
989'000 - 2'475'000 евро
Описание:
Новый комплекс из двух четырёхэтажных зданий в центре Гринцинга. Каждое здание включает по четыре апартамента, площадь варьируется от 119 до 252 м² + большие террасы или сад. Высокое качество отделки, выложен паркет, подогрев полов, полная звукоизоляция, сантехника. Объект подразумевает внутренний лифт, кладовые помещения и закрытый паркинг с отдельным доступом. Удачное расположение и хорошая транспортная доступность, всего пол часа от аэропорта.
Дополнительно:
Есть терраса
Вся инфраструктура рядом
Места на парковке
Заявка
на квартиру (подробности,
расположение, визит)
