#45888
Пентхаус-студия возле университета в Ницце
Вас заинтересовала эта квартира?
Агентство зарубежной недвижимости "EstateService"
Франция, Лазурный Берег, Ницца
- Типапартаменты
- Количество спаленстудия
- Общий метраж39 кв. м.
Цена:
196'000 евро
Описание:
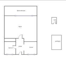
Квартира на верхнем этаже возле Университета (факультет литературы, искусств и гуманитарных наук) и пешей доступностью от моря и магазинов. Общая площадь 39.3 m² (жилая 33.06 m²) - прихожая 2.8 m², кухня 3.5 m² с окном, гостиная 20 m² с спальной зоной и балконом 6 m² - боковой вид на море, ванная комната 4 m² с окном, ванной и туалетом. Хорошее состояние, прилагается кладовая 3 m² и частная парковка. Коммунальные платежи 83 €, годовой налог 840 €. Сделано предложение.
Дополнительно:
Есть терраса: 6 кв. м.
Вид на море
До пляжа: пешком
Вся инфраструктура рядом
Места на парковке
Заявка
на квартиру (подробности,
расположение, визит)
Похожая недвижимость
