Уникальный дуплекс в секторе Victor Hugo
Агентство зарубежной недвижимости "EstateService"
- Типапартаменты
- Количество спален6
- Общий метраж233 кв. м.
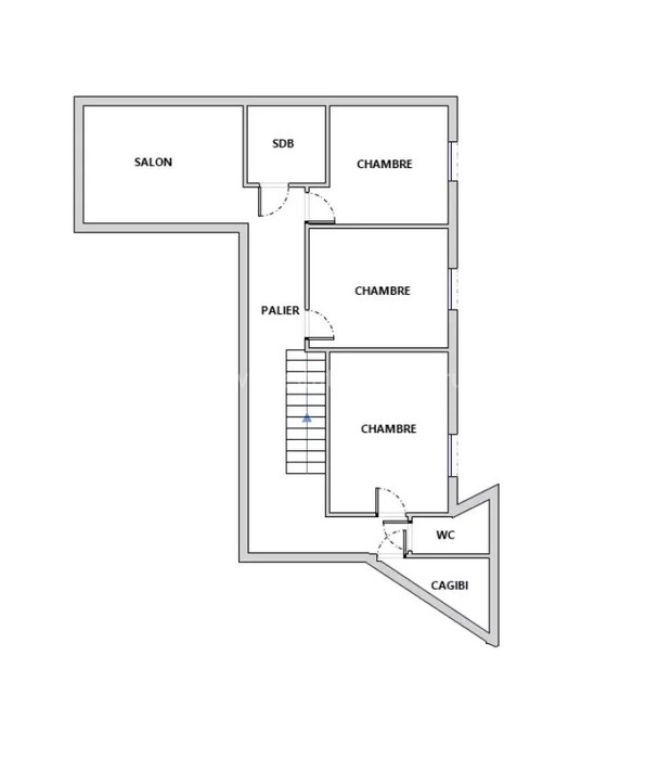
Действительно просторная квартира в престижном Belle Epoque здании в центре Ниццы. Общая площадь 233 m² (жилая 198 m²), на первом уровне прихожая 7.6 m², солидная гостиная-столовая 49.6 m² с высоким потолком 4.5 метра и прямым видом на парк, отдельная кухня 10.2 m² и две спальни 10.5 и 11 m² на внутренний двор, кабинет, ванная комната и туалет. Наверху разместились ещё три спальни 10.5-11 m², вторая гостиная, ванная комната, туалет и несколько гардеробных. Все удобства пешком! Включены подсобная комната 15 m² свободного назначения и большая кладовая 11.4 m² в подвале. Коммунальные платежи 280 €, годовой налог 2.763 €.
