Большой дом под ремонт с потенциалом в Ницце
Агентство зарубежной недвижимости "EstateService"
- Типвилла
- Количество спален4
- Общий метраж421 кв. м.
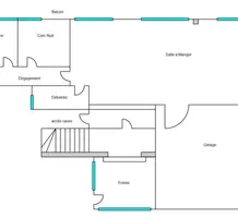
Тихая и просторная вилла с живописным расположением недалеко от знаменитого замка-винодельни Кремат. Общая площадь 421 m² (жилая 218 m²), ровный участок 1.500 m². Дом включает три уровня примерно по 125 m² каждый - можно переделать в три апартамента с отдельным доступом. Нижний подлежит (голые стены) полной перепланировке, в настоящее время включает большое помещение 63 m² с прямым выходом в сад, две кладовые 16.6 и 26.6 m² с большими окнами и подсобку. На уровне сада - прихожая 15.7 m², гостиная 51.4 m² с балконом 22.3 m² на юго-запад, отдельная кухня 6 m², душевая с туалетом, спальня 8.2 m², кладовая и двойной гараж 36 m². Наверху по лестнице разместились холл 22.7 m², ведущий во все комнаты, огромная гостиная-столовая 31.5 m² с камином и панорамным балконом 21.6 m², три большие спальни 14.4, 15.6 и 1.78 m² с гардеробными, отдельная кухня/четвёртая спальня 17.4 m², ванная комната с туалетом и отдельный санузел. Несколько вариантов перепланировки, есть место под бассейн, хороший потенциал. Годовой налог 3.236 €
