#49100
Недостроенный дом с 5-ю спальнями в Grasse
Вас заинтересовал этот дом?
Агентство зарубежной недвижимости "EstateService"
Франция, Лазурный Берег, Грасс
- Типвилла
- Количество спален5
- Общий метраж166 кв. м.
Цена:
318'000 евро
Описание:
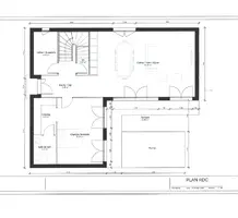
Просторная вилла с большим потенциалом и удобным расположением в квартале Saint-Claude. Жилая площадь 166 m², на первом уровне прихожая 8 m², гостиная 46 m² с кухней, главная спальня 20 m², ванная комната, гардеробная и отдельный санузел. На втором подразумеваются четыре спальни 13-14 m², общая ванная комната, туалет и две террасы. Возможность доработать и завершить проект в соответствии с пожеланиями клиента, на участке 755 m² разрешено поставить бассейн, несколько парковочных мест.
Дополнительно:
Есть терраса
До пляжа: на машине
Вся инфраструктура рядом
Места на парковке
Заявка
на виллу (подробности,
расположение, визит)
Похожая недвижимость
