#49938
Вилла с двумя спальнями в Кап-д'Ай
Вас заинтересовал этот дом?
Агентство зарубежной недвижимости "EstateService"
Франция, Лазурный Берег, Кап-д'Ай
- Типвилла
- Количество спален2
- Общий метраж100 кв. м.
Цена:
745'000 евро
Описание:
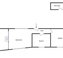
Очаровательный домик с захватывающей панорамой поблизости от центра и Монако. Общая площадь 100 m² (жилая 65 m²), террасный участок 466 m² с садом и сараем. В доме - прихожая 3.7 m², гостиная 21.5 с открытой кухней и выходом на широкую террасу 35 m², две спальни 11.7 и 15.3 m², ванная комната 5.5 m² с туалетом. Доступ по пешеходной дорожке - нет подъезда для автомобиля! Годовой налог на имущество 620 €.
Дополнительно:
Есть терраса: 35 кв. м.
Вид на море
Вся инфраструктура рядом
Заявка
на виллу (подробности,
расположение, визит)
Похожая недвижимость
