#50150
Дом с гостевым апартаментом в Вансе
Вас заинтересовал этот дом?
Агентство зарубежной недвижимости "EstateService"
Франция, Лазурный Берег, Ванс
- Типвилла
- Количество спален6
- Общий метраж165 кв. м.
Цена:
899'000 евро
Описание:
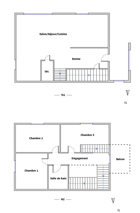
Ухоженная вилла поблизости от магазинов, достопримечательностей и центра Ванса. Площадь дома 165 m², на участке 1.400 m² бассейн с подогревом, несколько площадок, тройной паркинг и отдельная двухуровневая квартира для гостей - гостиная с кухней, две спальни, душевая комната с туалетом и подвал. На первом этаже двойная гостиная с открытой кухней, отдельный туалет и прачечная, далее разместились три спальни и ванная комната с туалетом, наверху - большая спальня. Годовой налог 1.534 €.
Дополнительно:
Есть терраса
Бассейн
Вся инфраструктура рядом
Места на парковке
Детская площадка
Заявка
на виллу (подробности,
расположение, визит)
Похожая недвижимость
