#50842
Квартира под ремонт на Английской набережной
Вас заинтересовала эта квартира?
Агентство зарубежной недвижимости "EstateService"
Франция, Лазурный Берег, Ницца, Promenade des Anglais
- Типапартаменты
- Количество спален1 - 2
- Общий метраж84 кв. м.
Цена:
760'000 евро
Описание:
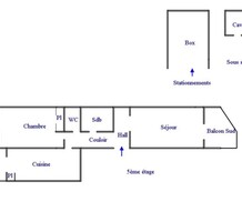
Апартаменты на шестом (6/8) этаже престижной резиденции с садиком и консьержем напротив Plage Florida и 600-х метрах от Le Negresco. Общая площадь 84.7 m² (жилая 70.4 m²) - прихожая 6.8 m² с гардеробной, гостиная 29.7 m² с панорамной террасой 8 m², отдельная кухня 7.9 и спальня 16.1 m² с балконом 6.3 m² на Rue de France, ванная комната и санузел. В настоящее время идёт ремонт фасада, квартира продаётся с кладовой, можно оборудовать вторую спальню, купить гараж и/или два парковочных места с прямым доступом на лифте. Коммунальные платежи 206 €, годовой налог 1.506 €.
Дополнительно:
Есть терраса: 14 кв. м.
Вид на море
До пляжа: пешком
Закрытая территория \ Охрана
Вся инфраструктура рядом
Места на парковке
Заявка
на квартиру (подробности,
расположение, визит)
Похожая недвижимость
