#51067
Квартира с гаражом в начале мыса Антиб
Вас заинтересовала эта квартира?
Агентство зарубежной недвижимости "EstateService"
Франция, Лазурный Берег, Антиб, Cap-d'Antibes
- Типапартаменты
- Количество спален1
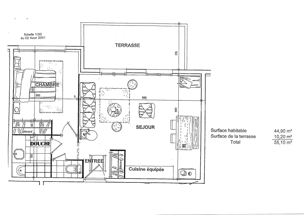
- Общий метраж55 кв. м.
Цена:
410'000 евро
Описание:
Уютные апартаменты на третьем (предпоследнем, есть лифт) этаже закрытого кондоминиума с ухоженной территорией и бассейном в 500-х метрах от пляжа. Общая площадь квартиры 55.1 m² (жилая 44.9 m²) - прихожая, гостиная с кухней и выходом на удобную террасу 10.2 m² - приятный вид с небольшим проблеском моря, спальня, душевая и отдельный туалет. Коммунальные платежи 260 €, годовой налог 980 €.
Дополнительно:
Есть терраса: 10 кв. м.
Вид на море
Бассейн
До пляжа: пешком
Закрытая территория \ Охрана
Вся инфраструктура рядом
Места на парковке
Заявка
на квартиру (подробности,
расположение, визит)
Похожая недвижимость
