#51068
Квартира возле моря в Золотом Квадрате
Вас заинтересовала эта квартира?
Агентство зарубежной недвижимости "EstateService"
Франция, Лазурный Берег, Ницца, Carrе d’Or
- Типапартаменты
- Количество спален3
- Общий метраж105 кв. м.
Цена:
810'000 евро
Описание:
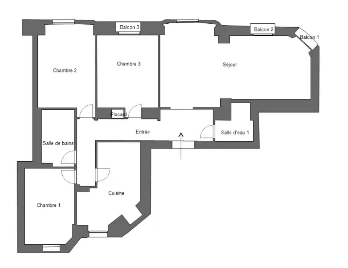
Элегантные апартаменты на втором этаже буржуазного здания в ста метрах от Английской Набережной. Общая площадь 105.5 m² (жилая 103.5 m²) - вестибюль 12.7 m², просторная гостиная 30.4 m² с камином, отдельная кухня 12.4 m², три спальни 10.9, 13.6 и 14.2 m², главная с гардеробной, ванная комната, душевая и три балкончика 0.6 - 0.7 m². Ухоженное здание с лифтом, помещение для хранения велосипедов, шикарный ремонт, высокие потолки с лепниной, большая кладовая 6.7 m². Коммунальные платежи 250 €, годовой налог 1.160 €.
Дополнительно:
Есть терраса
До пляжа: пешком
Вся инфраструктура рядом
Заявка
на квартиру (подробности,
расположение, визит)
Похожая недвижимость
