#51225
Пентхаус с гаражом и огромной террасой
Вас заинтересовала эта квартира?
Агентство зарубежной недвижимости "EstateService"
Франция, Лазурный Берег, Ментон, Centre
- Типапартаменты
- Количество спален4
- Общий метраж143 кв. м.
Цена:
1'522'250 евро
Описание:
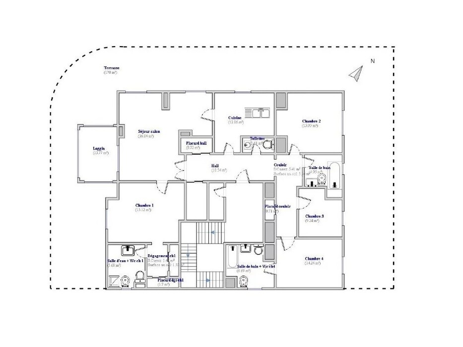
Квартира под обновление на верхнем этаже резиденции в 200-х метрах от моря. Жилая площадь 144 m² + терраса 170 m² и лоджия 13.7 m² - прихожая 10.5 m², светлая гостиная 36.8 m², отдельная кухня 12.8 m², четыре спальни 9.2, 14, 15 и 15.9 m², две ванные комнаты, душевая с туалетом и отдельный санузел. Большой потенциал, включены кладовая 5 m² и гараж 16.6 m². Коммунальные платежи 516 €.
Дополнительно:
Есть терраса: 184 кв. м.
Вид на море
До пляжа: пешком
Вся инфраструктура рядом
Места на парковке
Заявка
на квартиру (подробности,
расположение, визит)
Похожая недвижимость
