#48804
Вилла с разрешением на расширение в Cap-d'Ail
Вас заинтересовал этот дом?
Агентство зарубежной недвижимости "EstateService"
Франция, Лазурный Берег, Кап-д'Ай
- Типвилла
- Количество спален3
- Общий метраж110 кв. м.
Цена:
950'000 евро
Описание:
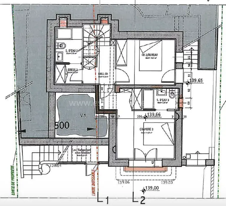
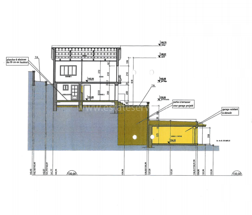
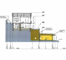
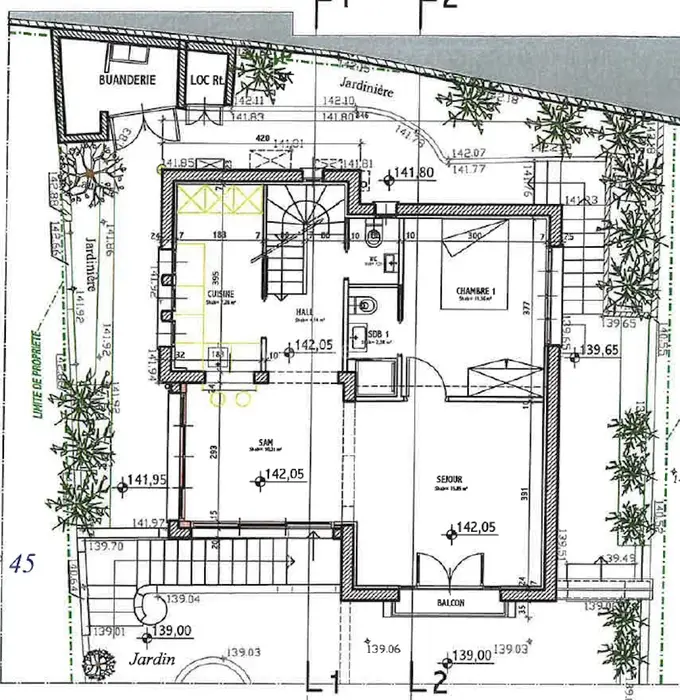
Атмосферный дом с прямым видом на море поблизости от центра Кап д'Ай. Получено разрешение на расширение и строительство гаража на две машины. Планировка после реконструкции: на верхнем этаже гостиная 15.8 m², примыкающая столовая 10.3 m², отдельная кухня 7.2 m², спальня 11.6 m² с душевой комнатой и гостевой туалет. На уровне сада две спальни 10 и 14.3 m² с выходом на террасу, две душевые комнаты, туалет и гардеробная. Аккуратный участок 300 m² с ухоженным садиком.
Дополнительно:
Есть терраса: 50 кв. м.
Вид на море
До пляжа: пешком
Закрытая территория \ Охрана
Вся инфраструктура рядом
Места на парковке
Заявка
на виллу (подробности,
расположение, визит)
Похожая недвижимость
