#49914
Дом с видом и потенциалом возле Парка Винегрье
Вас заинтересовал этот дом?
Агентство зарубежной недвижимости "EstateService"
Франция, Лазурный Берег, Ницца, Vinaigrier
- Типвилла
- Количество спален5
- Общий метраж259 кв. м.
Цена:
1'199'000 евро
Описание:
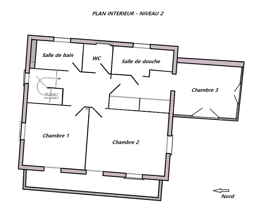
Элегантный особняк в колониальном стиле с захватывающей панорамой на море и окрестности. Общая площадь 259 m² (жилая 190 m²), земельный участок 1.100 m². На первом уровне отдельная студия 22.5 m², гараж 65 m² и мастерская, далее разместились прихожая 7.3 m², большая гостиная 64.8 m² с большой террасой, отдельная кухня 10.2 m², кабинет 11.6 m², санузел и гардеробная. Наверху - три большие спальни 11.5, 13.8 и 17.7 m², одна с балконом, душевой и гардеробной, общая ванная комната и туалет. Ориентировочная стоимость ремонта порядка 150.000 €. Годовой налог на имущество 2.270 €.
Дополнительно:
Есть терраса
Вид на море
Бассейн
Вся инфраструктура рядом
Места на парковке
Заявка
на виллу (подробности,
расположение, визит)
Похожая недвижимость
