#50376
Пентхаус с паркингом в 20-ти метрах от моря
Вас заинтересовала эта квартира?
Агентство зарубежной недвижимости "EstateService"
Франция, Лазурный Берег, Ментон
- Типапартаменты
- Количество спален2
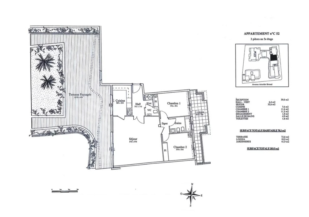
- Общий метраж207 кв. м.
Цена:
1'190'000 евро
Описание:
Квартира на верхнем этаже современной резиденции с консьержем, садиком, бассейном, спа-салоном, видеонаблюдением и спорт-залом на первой линии моря. Общая площадь 207.3 m² (жилая 77.7 m²) - прихожая 6.4 m² с гардеробной, гостиная-столовая 32.5 m² с примыкающей кухней 7.2 m² выходят на большую террасу 118 m² с садиком 40 m², две спальни 11.4 и 11.6 m² с балконом 10.8 m² - также с видом на море, общая ванная комната с туалетом и отдельный санузел. Отличное состояние, центральный кондиционер, включены кладовая и двойной крытый паркинг. Коммунальные платежи 587 €, годовой налог 2.833 €.
Дополнительно:
Есть терраса: 129 кв. м.
Вид на море
Бассейн
Закрытая территория \ Охрана
Вся инфраструктура рядом
Места на парковке
Свой SPA-центр
Спортзал
Заявка
на квартиру (подробности,
расположение, визит)
Похожая недвижимость
