#50621
Апартаменты с новым ремонтом - ул. Шатонёф
Вас заинтересовала эта квартира?
Агентство зарубежной недвижимости "EstateService"
Франция, Лазурный Берег, Ницца
- Типапартаменты
- Количество спален1
- Общий метраж67 кв. м.
Цена:
369'000 евро
Описание:
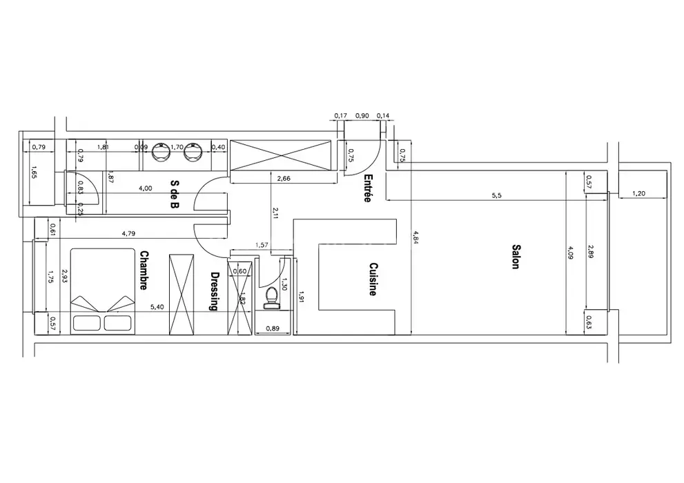
Полностью отремонтированная квартира на шестом (6/9) этаже дома с лифтом в 850-ти метрах от моря. Общая площадь 67.9 m² (жилая 61.2 m²) - прихожая 8.8 m², светлая гостиная 29 m² с кухней и террасой 5.25 m², большая спальня 15.1 m² с балконом 1.4 m² и гардеробной, душевая комната и отдельный туалет. Качественная отделка, готова к заселению, можно купить с мебелью, включена кладовая, паркинг - 38.000 €. Коммунальные платежи 162 €, годовой налог 1.610 €.
Дополнительно:
Есть терраса: 6 кв. м.
До пляжа: пешком
Вся инфраструктура рядом
Места на парковке
Заявка
на квартиру (подробности,
расположение, визит)
Похожая недвижимость
