#50840
Обновлённый пентхаус в Каннах, Пуант-Круазетт
Вас заинтересовала эта квартира?
Агентство зарубежной недвижимости "EstateService"
Франция, Лазурный Берег, Канны, Pointe Croisette
- Типапартаменты
- Количество спален2
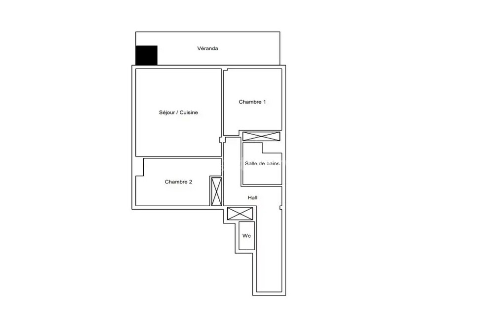
- Общий метраж75 кв. м.
Цена:
477'000 евро
Описание:
Тихая квартира на верхнем этаже здания с лифтом в трёх минутах ходьбы от пляжа и центра. Общая площадь 75.7 m² (жилая 63.1 m²) - прихожая 13 m², светлая гостиная 21.9 m² с открытой кухней и солнечной лоджией 12.6 m² - есть проблеск моря, две спальни 11 и 11.2 m², ванная комната и отдельный туалет. Отличное состояние, есть кладовая, всё пешком. Коммунальные платежи 225 €.
Дополнительно:
Есть терраса: 12 кв. м.
Вид на море
До пляжа: пешком
Вся инфраструктура рядом
Заявка
на квартиру (подробности,
расположение, визит)
Похожая недвижимость
