#51069
Квартира в резиденции с бассейном в Ментоне
Вас заинтересовала эта квартира?
Агентство зарубежной недвижимости "EstateService"
Франция, Лазурный Берег, Ментон, Garavan
- Типапартаменты
- Количество спален3
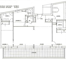
- Общий метраж173 кв. м.
Цена:
1'456'000 евро
Описание:
Современные (2015 г) апартаменты на верхнем этаже небольшой (всего на пять квартир) резиденции с лифтом, садом и бассейном в нескольких шагах от моря. Общая площадь 173 m² (жилая 142.9 m²) - прихожая, очень светлая гостиная-столовая с шикарной террасой 34.2 m², отдельная кухня с видом на море, три спальни (две также выходят на террасу), каждая с собственной ванной/душевой комнатами, биде и туалетами. Качественные материалы и отделка, красивые панорамные виды, можно купить гараж на одну или две машины. Коммунальные платежи 500 €.
Дополнительно:
Есть терраса: 33 кв. м.
Вид на море
Бассейн
До пляжа: пешком
Закрытая территория \ Охрана
Цена включает меблировку
Вся инфраструктура рядом
Места на парковке
Заявка
на квартиру (подробности,
расположение, визит)
Похожая недвижимость
