#38938
Современный комплекс в нескольких минутах от Монако
Вас заинтересовала эта квартира?
Агентство зарубежной недвижимости "EstateService"
Франция, Лазурный Берег, Эз
- Типапартаменты
- Количество спален1 - 3
- Общий метраж40 - 88 кв. м.
Цена:
370'000 - 577'000 евро
Описание:
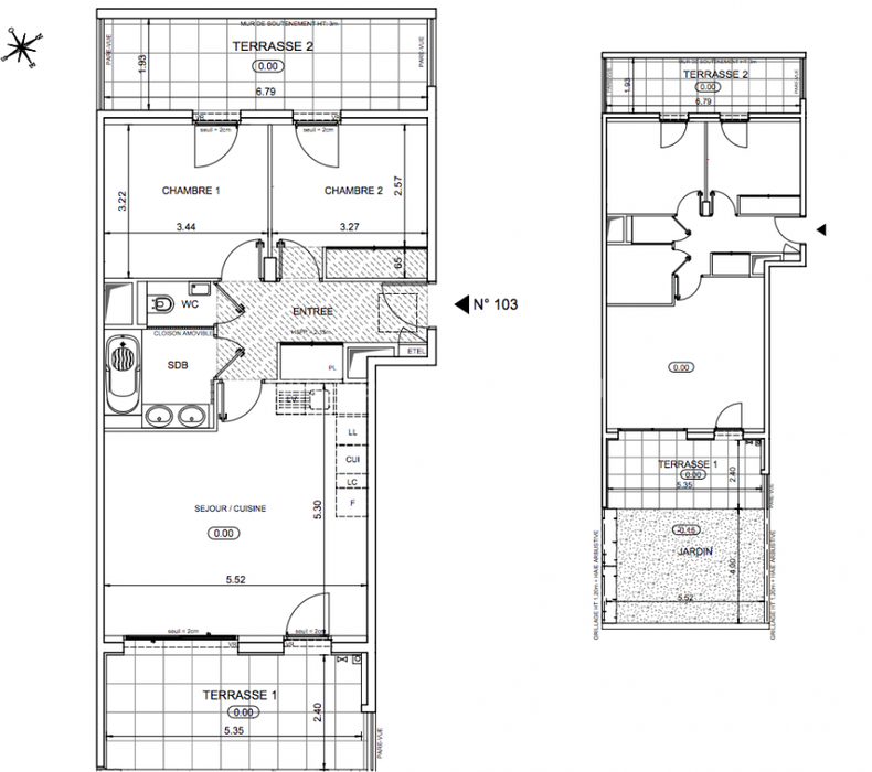
Новый проект с бассейном в трёх километрах от побережья в Эз. Комплекс имеет четыре корпуса, ориентирован на юго-восток, включает 34 апартамента с 1-3 спальнями, большинство из которых с видом на море. Жилая площадь оставшихся квартир от 40.8 до 76 m² + терраса, лоджия или садик на первых этажах. Современные материалы, отделка и планировки, удобное расположение возле магазинов и автобусной остановки до Ниццы. Стоимость включает паркинг. Сдача объекта запланирована в 1-м квартале 2023 года.
Дополнительно:
Есть терраса
Вид на море
Бассейн
До пляжа: на машине
Закрытая территория \ Охрана
Вся инфраструктура рядом
На стадии строительства
Места на парковке
Заявка
на квартиру (подробности,
расположение, визит)
Похожая недвижимость
