#49862
Дом под завершение работ в Beaulieu-sur-Mer
Вас заинтересовал этот дом?
Агентство зарубежной недвижимости "EstateService"
Франция, Лазурный Берег, Больё-сюр-Мер
- Типвилла
- Количество спален2
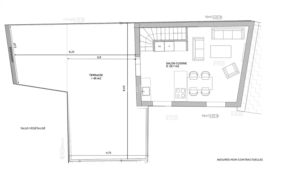
- Общий метраж92 кв. м.
Цена:
495'000 евро
Описание:
Смежная вилла с удобным расположением в 250-ти метрах от моря. Общая площадь 92 m² (жилая 50 m² + гараж 42.2 m² на две машины) и терраса 45 m². На первом этаже подразумеваются (можно изменить) прихожая 4.9 m², две спальни 10.2 и 13.6 m² с душевыми и отдельный санузел. На втором - гостиная 26.7 m² с открытой кухней, зоной столовой и выходом на солнечную террасу 45 m². Дом готов к завершению, предустановка электрики, сантехники и кондиционера, гидроизоляция фасада и террасы, новые окна и крыша - редкая возможность закончить проект на свой вкус!
Дополнительно:
Есть терраса: 45 кв. м.
До пляжа: пешком
Вся инфраструктура рядом
Места на парковке
Заявка
на виллу (подробности,
расположение, визит)
Похожая недвижимость
