#51079
Земля с разрешением на строительство в Валлорис
Вас заинтересовал этот участок?
Агентство зарубежной недвижимости "EstateService"
Франция, Лазурный Берег, Валлорис
- Типучасток
- Общий метраж1669 кв. м.
Цена:
739'200 евро
Описание:
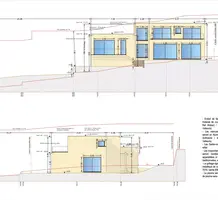
Участок с подведенными коммуникациями в тихом и зеленом частном поселке в четырёх километрах от моря. Площадь земли 1.669 m², получено разрешение на строительство современной виллы 330 m² на трёх уровнях. Доступ по частной асфальтированной дороге, подведены вода, электричество, телекоммуникации и центральная канализация, хороший потенциал.
Дополнительно:
Есть терраса
Закрытая территория \ Охрана
Вся инфраструктура рядом
Места на парковке
Заявка
на земельный участок (подробности,
расположение, визит)
Похожая недвижимость
