Современный пентхаус в Ницце, Симье
Агентство зарубежной недвижимости "EstateService"
- Типапартаменты
- Количество спален2 - 3
- Общий метраж370 кв. м.
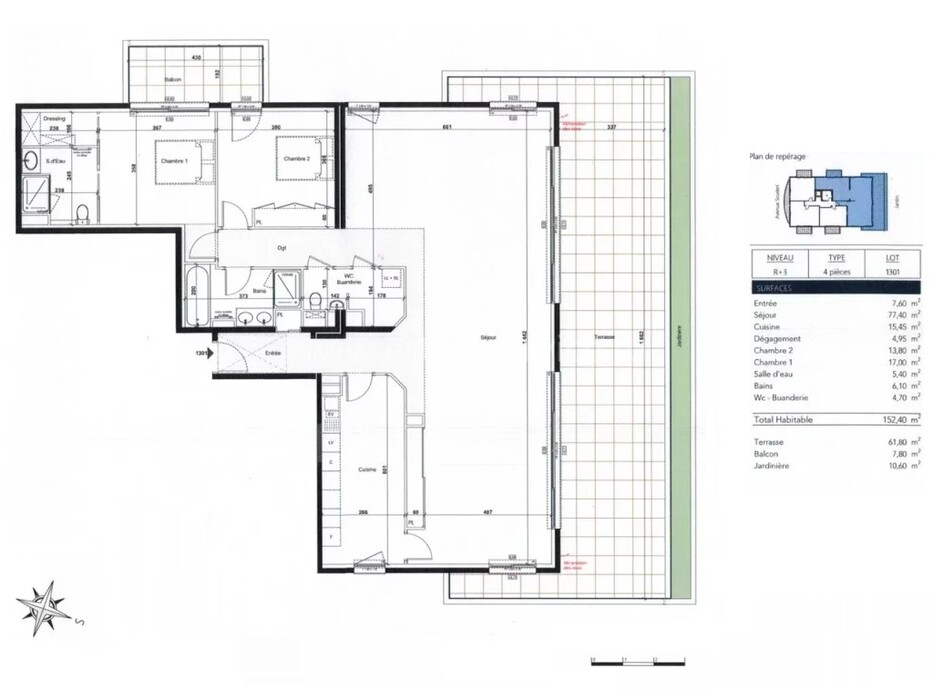
Практически новая квартира на верхнем (4-м) этаже престижной резиденции (2020 года постройки) в тихом зелёном квартале Cimiez. Общая площадь 370 m² (жилая 152 m²) - прихожая 7.6 m² с встроенным шкафом, двойная гостиная 77.4 m² с угловой террасой 61.8 m², отдельная кухня 15.4 m², две спальни 13.8 и 17 m² с общим балконом 7.8 m², главная со своей душевой/туалетом и гардеробной, ванная комната с двойной раковиной, ванной и душевой, прачечная, отдельный туалет и шикарная терраса 138 m² на крыше - можно разместить большую летнюю кухню, солярий, джакузи или небольшой бассейн. Отличное состояние, включены два двойных (4 места) гаража. Возможность приобрести однокомнатную квартиру 43 m² на этом же этаже. Коммунальные платежи 430 €, годовой налог 4.200 €.
